Moderne Villa mit Garage und Garten in Nijswiller

Standort
6286 AH Wittem
Kaufpreis 797.500 €
Zimmer 5
Schlafzimmer 3
Wohnfläche ca. 220 m²

Objektdaten

Standort
6286 AH Wittem
Wohnfläche
ca. 220 m²
Grundstück
ca. 400 m²
Anzahl Zimmer
5
Anzahl der Schlafzimmer
3
Anzahl Badezimmer
1
Anzahl separater WCs
1
Anzahl Terrassen
1
Anzahl Stellplätze
2
Kaufpreis
797.500 €
Käuferprovision
Provisionsfrei für Kaufende.
Bezugsfrei ab
Nach Vereinbarung
Objekttyp
Villa
Nutzungstyp
Wohnen
Verfügbarkeit
Verfügbar
Vermarktungstyp
Kauf
Baujahr
2009
Zustand
Gepflegt
Verfügbarkeit
Verfügbar

Objektbeschreibung

Im charmanten Nyswiller befindet sich diese beeindruckende moderne Villa. Die Immobilie bietet eine durchdachte Raumaufteilung, viel Licht und Wohnkomfort.

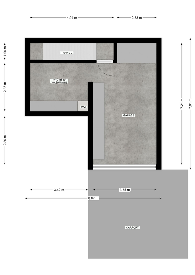
Die Zufahrt zum Haus ist großzügig gestaltet und bietet Platz für drei Fahrzeuge. Die integrierte Garage ist sowohl über ein elektrisches Sektionaltor von außen als auch über eine Treppe vom Flur im Hausinneren erreichbar. Sie bietet Platz für ein Fahrzeug und verfügt über einen Bodenablauf, Wandschränke, eine Kühl-Gefrier-Kombination sowie ausreichend Stauraum. Zusätzlich befindet sich auf dieser Ebene ein praktischer Hauswirtschaftsraum mit Arbeitsfläche und weiteren Aufbewahrungsmöglichkeiten. Der gesamte Bereich ist mit einem langlebigen und pflegeleichten Epoxidboden versehen.

Die Betontreppe führt hinauf zum Eingangsbereich, wo eine beeindruckende Gestaltung den Besucher willkommen heißt. Von der Diele aus sind das Wohnzimmer, die Garderobe, der Zählerschrank, das Kellergeschoss, die Küche sowie das Gäste-WC mit WC und Waschtisch zugänglich.

Das Wohnzimmer ist offen und geräumig gestaltet. Ein stilvoller Raumteiler mit Gaskamin trennt den Raum elegant und schafft eine behagliche Sitzecke. Angrenzend befindet sich das Esszimmer, das mit der Küche verbunden ist. Hier findet auch ein großer Esstisch bequem Platz und durch die große Schiebetür gelangt man direkt in den Garten.

Die moderne Küche wurde erst vor einem Jahr eingebaut. Die großzügige Kochinsel mit Arbeitsplatte aus Edelstahl ist mit hochwertigen Siemens-Geräten ausgestattet, darunter ein Kombi-Backofen, ein Dampfgarer, eine Spülmaschine, ein Kühlschrank und ein Gefrierschrank. Darüber hinaus verfügt die Küche über einen Quooker - einen innovativen Wasserhahn sowie eine Dunstabzugshaube der Marke Novi und viel Stauraum.

Das Erdgeschoss ist mit einem Epoxidboden, einer Fußbodenheizung, integrierter Beleuchtung und verputzten Wänden versehen.

Der sonnige Garten ist nach Südwesten ausgerichtet und bietet viel Privatsphäre. Eine großzügige Terrasse und ein gepflegter Rasen werden von einer dichten Buchenhecke eingefasst, sodass man die Ruhe und das viele Grün ungestört genießen kann.

Über eine feste Betontreppe im Wohnzimmer gelangt man ins Obergeschoss. Der Flur ist durch eine große Lichtöffnung mit elektrisch steuerbarem Sonnenschutz, der über ein Smart-Home-System gesteuert wird, lichtdurchflutet. Diese Etage beherbergt drei Schlafzimmer mit ca. 25 m², 16 m² und 10 m² Fläche.

Im luxuriösen Badezimmer finden sich ein Doppelwaschbecken mit Unterschrank, eine Badewanne, eine ebenerdige Dusche, eine Toilette und ein Design-Heizkörper. Außerdem befindet sich hier der Technikraum mit einer neuen Nefit-Gastherme aus dem Jahr 2024, einem System zur Wärmerückgewinnung sowie der Steuerung für die Solaranlage.

Auch diese Etage präsentiert sich mit einem hochwertigen Epoxidboden, Fußbodenheizung, eleganten Einbauleuchten und architektonisch außergewöhnlichen Innentüren, die sich beidseitig öffnen lassen.

Bildergalerie

Stellplatz
Ja
Balkon/Terrasse Richtung Südwesten
Ja
Keller
Teilunterkellert

Lage

Diese Villa befindet sich in herrlicher, leicht erhöhter Lage in Nijswiller, einer Ortschaft in der niederländischen Provinz Limburg. Umgeben von weitläufiger Grünlandschaft bietet das Anwesen einen besonders ruhigen Rückzugsort, ohne dass auf eine vorteilhafte Anbindung an das Verkehrsnetz verzichtet werden muss.

Der Ort gehört zur Gemeinde Wittem und liegt östlich von Maastricht, wodurch städtische Infrastruktur und Naturgenuss ideal miteinander kombiniert werden können. Einkaufsmöglichkeiten, Schulen und Gesundheitseinrichtungen sind in der näheren Umgebung bzw. in den Nachbarorten vorhanden, beispielsweise eine Grundschule in Mechelen, die bequem erreichbar ist.

Über die N281 erreichen Sie nach etwa 10 km die A76, von der aus Sie ebenfalls auf die A79 gelangen, sodass die gesamte Region bequem erreichbar ist. Eine Bushaltestelle befindet sich direkt vor der Haustür.

Für Freizeit und Erholung stehen in unmittelbarer Nähe ausgeprägte Wander- und Radwege zur Verfügung, die vorbei an Tälern und Bächen wie der Selzerbeek führen.

Ausstattungsbeschreibung

-Solarthermieanlage mit 15 Sonnenpaneelen
-Oberlicht mit elektrischem Sonnenschutz
-Smart-Home
-Fußbodenheizung
-Heizkessel: Nefit (Baujahr 2024)
-Garage

Weitere Beschreibung

Die Angaben zum Objekt basieren auf Auskünften des Eigentümers, so dass keine Haftung übernommen werden kann. Änderungen und Irrtümer bleiben vorbehalten.

Ihr Ansprechpartner

Energieausweis

Baujahr2009
EnergieausweisVerfügbar
Energie­ausweistypBedarfsausweis
Gültig bis25.08.2035
Mit WarmwasserJa
PrimärenergieträgerGas
Energieeffizienz KlasseB
Endenergiebedarf181,16 kWh/(m²·a)
HeizungsartFußbodenheizung
EnergieträgerSolar
A+
A
B
C
D
E
F
G
H

Ähnliche Immobilien