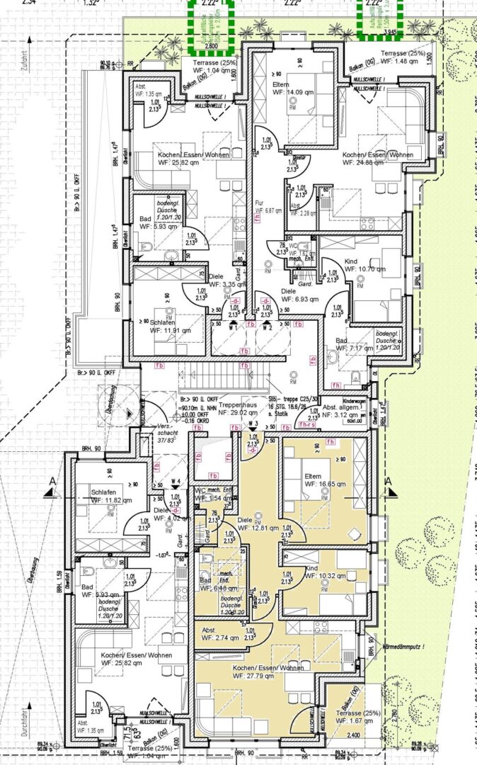
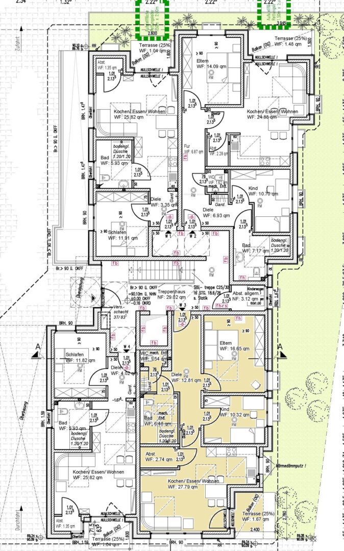
Dieses Neubauprojekt umfasst insgesamt 11 exklusive Eigentumswohnungen davon 5 Zweizimmerwohnungen und 6 Dreizimmerwohnungen, mit Wohnflächen von ca. 50 – 85 m², alle inkl. Stellplatz. Alle Wohneinheiten überzeugen mit einem ansprechenden Grundriss und großzügigen Fensterflächen. Durch den Fahrstuhl haben Sie zudem einen barrierefreien Zugang zu allen Etagen.
Die hier angebotene Dreizimmerwohnung (ATP3) mit einer Wohnfläche von 80 m² befindet sich im Erdgeschoss und verfügt über eine Diele mit Garderobenbereich, ein Gäste-WC, zwei Schlafzimmer, ein Bad mit bodengleicher Dusche, Waschtisch und Hänge-WC, einen Abstellraum, sowie einen großzügigen offenen Wohnraum mit integriertem Küchenbereich, der ein modernes Ambiente schafft. Bodentiefe Fenstern führen zur Terrasse, auf der Sie die Sonne genießen können.
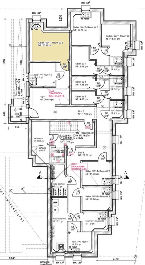
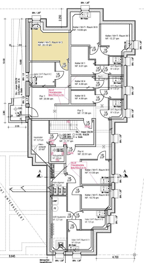
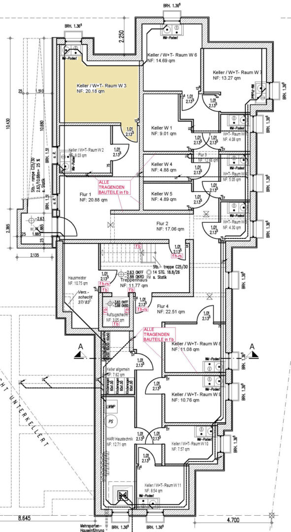
Zu dieser Wohneinheit gehört ein Kellerraum mit Anschlüssen für Waschmaschine und Trockner.
Jeder Eigentumswohnung sind zwei Stellplätze zugeordnet. Die Vorbereitung für die Installation von Wallboxen ist vorgesehen und ermöglicht eine zukunftsorientierte Nutzung im Bereich der Elektromobilität.
Für nähere Informationen setzen Sie sich gerne unverbindlich mit unserem Büro in Verbindung.










